This plan can be tailored to fit your lot, lifestyle, and design preferences. Whether you’re building on your own land or one of ours, we’re here to help you bring your vision to life—thoughtfully, beautifully, and built to last.
Overview
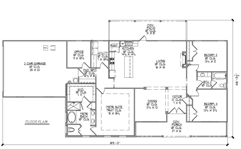
Welcome to The Homestead — a warm, functional layout designed with everyday living and timeless style in mind. With 4 bedrooms, 2 bathrooms, and a flex room, this plan offers thoughtful versatility for families in all seasons of life. A spacious 12-foot foyer makes a memorable first impression, while the open-concept design and 10-foot ceilings throughout create a seamless flow. From the inviting 37-foot front porch to the expansive 31-foot covered back porch, The Homestead welcomes you home with room to breathe.
Interior Details
Private Spaces & Extras




