This plan can be tailored to fit your lot, lifestyle, and design preferences. Whether you’re building on your own land or one of ours, we’re here to help you bring your vision to life—thoughtfully, beautifully, and built to last.
Welcome Home
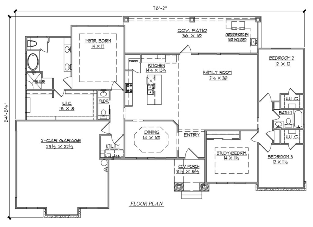
This thoughtfully designed custom home offers 2,358 sq. ft. of living space on a generous 1.03-acre lot. With 4 bedrooms, 2.5 baths, and a flexible study, it perfectly balances luxury, comfort, and functionality. A grand 14-foot foyer introduces the home’s open and elegant layout.
Custom Finishes
From 8-foot doors to soft-close Benedittini cabinetry, every detail is crafted with care. The kitchen includes granite countertops, porcelain tile flooring, a walk-in pantry, and an 8-foot island—along with premium LG appliances, including a range with Air Fry and a smart dishwasher featuring TrueSteam technology.
Built for everyday living
Designed for modern convenience, the home is pre-wired for surround sound and equipped with a security system that includes exterior cameras. A spacious laundry area with a mud bench and storage makes coming and going from the garage a seamless part of daily life.
Outdoor Living You’ll Love




